Beschreibung
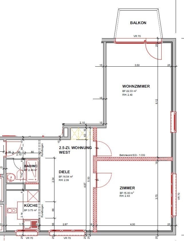
Wir vermieten per 01. Juli 2026 oder nach Vereinbaruch eine 2.5-Zimmer-Wohnungen mit einer Nutzfläche von ca. 60 m².
Die Wohnungen sind wie folgt ausgestattet:
- Parkett im Wohn- und Schlafbereich
- Plattenboden im Badezimmer
- Küche mit Geschirrspüler
- Dusche mit Duschtrennwand
- Neue Fenster mit Dreifachverglasung
- Kellerabteil für zusätzlichen Stauraum
- Balkon
Bei Bedarf kann ein Einstellhallenplatz für CHF 140.00 pro Monat dazu gemietet werden.
Die Liegenschaft ist mit der Niederer Connecting App ausgestattet. Dies bedeutet für Sie, dass Sie jederzeit und auf einfachem Weg mit uns in Verbindung treten können z.B. mit einer Schadenmeldung.
Die Gemeinde Spreitenbach ist optimal gelegen, auf halbem Weg zwischen Baden und Zürich. Der Autobahnanschluss A1 Dietikon liegt zwei Kilometer entfernt des Dorfes. Verschiedene Einkaufsmöglichkeiten befinden sich in unmittelbarer Nähe. Das Shoppi Tivoli erreichen Sie in ca. 4 Fahrminuten.
Die Wohnungen sind wie folgt ausgestattet:
- Parkett im Wohn- und Schlafbereich
- Plattenboden im Badezimmer
- Küche mit Geschirrspüler
- Dusche mit Duschtrennwand
- Neue Fenster mit Dreifachverglasung
- Kellerabteil für zusätzlichen Stauraum
- Balkon
Bei Bedarf kann ein Einstellhallenplatz für CHF 140.00 pro Monat dazu gemietet werden.
Die Liegenschaft ist mit der Niederer Connecting App ausgestattet. Dies bedeutet für Sie, dass Sie jederzeit und auf einfachem Weg mit uns in Verbindung treten können z.B. mit einer Schadenmeldung.
Die Gemeinde Spreitenbach ist optimal gelegen, auf halbem Weg zwischen Baden und Zürich. Der Autobahnanschluss A1 Dietikon liegt zwei Kilometer entfernt des Dorfes. Verschiedene Einkaufsmöglichkeiten befinden sich in unmittelbarer Nähe. Das Shoppi Tivoli erreichen Sie in ca. 4 Fahrminuten.
Eigenschaften
Aussenbereich
- Balkon(e)
- Parkplatz
Innenbereich
- Lift
- Haustiere gestattet







