Beschreibung
Suchen Sie eine 4½-Zimmerwohnung für Ihre Familie, oder brauchen Sie mehr Zimmer? Dann sind Sie hier genau richtig.
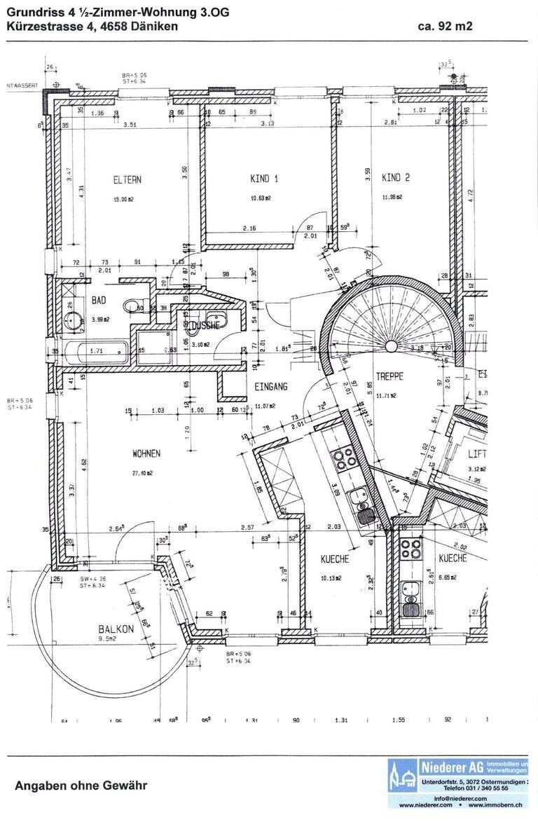
Die Wohnung befindet sich im 3. OG und ist 92 m2 gross. Die Liegenschaft ist ruhig und zentral gelegen. Einkaufsmöglichkeiten, Restaurants und Schulen sind direkt in der Nähe.
-Bodenbelag Wohnzimmer/Korridor/Esszimmer: Parkett
-Bodenbelag Eltern- und Kinderzimmer: Parkett
-Küchenabdeckung: Kunstharz
-Bodenbelag Nassräume: Linoleum
-Küche mit Glaskeramikkochherd und Geschirrspüler
-Dachschräge
-Einbauschränke
-Balkon 9.5 m2
Einstellhallenplätze können dazugemietet werden, CHF 111.- pro Monat.
ACHTUNG, wichtiger Hinweis: Bei den Wohnungsfotos handelt es sich nicht um Originalbilder der Wohnung, jedoch um denselben Wohnungstyp !
Kurzinfo über die Gemeinde Däniken:
Däniken liegt im solothurnischen Niederamt, zwischen der aargauischen Kantonshauptstadt Aarau und dem verkehrstechnischen Knotenpunkt Olten.
Die Gemeinde zählt 2760 Einwohner. Däniken ist die steuergünstigste Gemeinde des Kantons. Der Steuerfuss liegt bei 77 %. Zudem verfügt sie über eine optimale Infrastruktur. Däniken ist eine attraktive Gemeinde zum Leben, Wohnen und Arbeiten.
Die Gemeinde ist verkehrstechnsich gut erschlossen. Die Städte Olten und Aarau liegen ca. 8 km von Däniken entfernt. Die beiden nächstgelegenen Autobahnanschlüsse zur A1 (Bern-Zürich) können innerhalb von 15 Minuten erreicht werden.
Links:
www.daeniken.ch
www.so.ch
Die Wohnung befindet sich im 3. OG und ist 92 m2 gross. Die Liegenschaft ist ruhig und zentral gelegen. Einkaufsmöglichkeiten, Restaurants und Schulen sind direkt in der Nähe.
-Bodenbelag Wohnzimmer/Korridor/Esszimmer: Parkett
-Bodenbelag Eltern- und Kinderzimmer: Parkett
-Küchenabdeckung: Kunstharz
-Bodenbelag Nassräume: Linoleum
-Küche mit Glaskeramikkochherd und Geschirrspüler
-Dachschräge
-Einbauschränke
-Balkon 9.5 m2
Einstellhallenplätze können dazugemietet werden, CHF 111.- pro Monat.
ACHTUNG, wichtiger Hinweis: Bei den Wohnungsfotos handelt es sich nicht um Originalbilder der Wohnung, jedoch um denselben Wohnungstyp !
Kurzinfo über die Gemeinde Däniken:
Däniken liegt im solothurnischen Niederamt, zwischen der aargauischen Kantonshauptstadt Aarau und dem verkehrstechnischen Knotenpunkt Olten.
Die Gemeinde zählt 2760 Einwohner. Däniken ist die steuergünstigste Gemeinde des Kantons. Der Steuerfuss liegt bei 77 %. Zudem verfügt sie über eine optimale Infrastruktur. Däniken ist eine attraktive Gemeinde zum Leben, Wohnen und Arbeiten.
Die Gemeinde ist verkehrstechnsich gut erschlossen. Die Städte Olten und Aarau liegen ca. 8 km von Däniken entfernt. Die beiden nächstgelegenen Autobahnanschlüsse zur A1 (Bern-Zürich) können innerhalb von 15 Minuten erreicht werden.
Links:
www.daeniken.ch
www.so.ch
Eigenschaften
Aussenbereich
- Balkon(e)
- Garage
Innenbereich
- Haustiere gestattet
Distanzen
Öffentliche Verkehrsmittel
130 m
Kindergarten
500 m
Primarschule
400 m
Sekundarschule
2 km
Geschäfte
10 m








